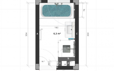
Familie K

März 2026

Vom ersten Planungsgespräch bis zum fertigen Wohlfühlbad.

Bei diesem Projekt wurde ein Badezimmer im Dachgeschoss vollständig modernisiert und neu gestaltet. Ziel war es, den vorhandenen Raum optimal zu nutzen um ein funktionales, modernes und zugleich gemütliches Badezimmer zu schaffen.

Bereits in der Planungsphase wurde gemeinsam mit den Kunden ein Konzept entwickelt, das die besonderen Gegebenheiten eines Dachgeschosses – wie Dachschrägen und begrenzte Raumhöhe – optimal berücksichtigt. Durch eine durchdachte Aufteilung und passende Sanitärobjekte konnte der vorhandene Platz effizient genutzt werden.

Im Zuge der kompletten Badezimmersanierung wurden sämtliche Leitungen erneuert, moderne Sanitäranlagen installiert und hochwertige Materialien verarbeitet. Eine platzsparende Dusche, stilvolle Armaturen sowie harmonisch abgestimmte Fliesen sorgen nun für eine freundliche und zeitgemäße Atmosphäre.

Das Ergebnis ist ein kleines, aber äußerst gemütliches Dachgeschossbad, das Funktionalität und Komfort perfekt verbindet. Dank der sorgfältigen Planung und fachgerechten Umsetzung entstand ein Badezimmer, das den vorhandenen Raum optimal nutzt.

Unsere Leistungen bei diesem Projekt:

• Individuelle Badplanung
• Komplettsanierung
• Erneuerung der Sanitärinstallationen

Frau S

Februar 2026

Badewanne raus – barrierefreie Dusche rein

Aus einer klassischen Badewanne wurde hier eine moderne, altersgerechte Dusche geschaffen.
Der komplette Umbau wurde in nur einer Woche umgesetzt – inklusive aller Fliesenlegerarbeiten.

Die neue Dusche bietet:

• einen fast ebenerdigen Einstieg
• deutlich mehr Komfort und Sicherheit im Alltag
• eine großzügige Duschfläche von 120x80cm
• moderne Glasabtrennungen für ein offenes, helles Raumgefühl
• fachgerechte Sanitärinstallation und saubere Ausführung

So entstand schnell und zuverlässig ein freundliches, zeitgemäßes Badezimmer, das sowohl optisch als auch funktional überzeugt.

Familie S-Z

Oktober 2025

Aus zwei kleinen Räumen wurde ein großzügiges, modernes Badezimmer.

Das ehemalige Badezimmer und ein angrenzendes Kinderzimmer wurden zu einem offenen, komfortablen Wellnessbereich zusammengeführt.
Die neue Infrarotkabine sorgt für entspannende Wärme, während das Geberit Dusch-WC zusätzlichen Komfort und Hygiene bietet.
Dank der fugenlosen Gestaltung wirkt der Raum nicht nur größer und ruhiger, sondern ist auch besonders pflegeleicht.
Ein durchdachtes Bad, das Funktionalität und Wohlgefühl perfekt verbindet.

 

Familie F

Juni 2024

Modernes & hochwertiges Badezimmer.

Dieses Badezimmer wurde mit edlen & hochwertigen Materialen ausgestattet.
Die Armaturen sind komplett aus Edelstahl und verleihen diesem Bad somit eine einzigartige Atmosphäre.
Der großzügige Duschbereich (100x140) lässt keine Wünsche offen, ob großer Regenduschen oder Handbrause, für jeden ist etwas dabei.
Legt man Wert auf Hygiene, ist ein Dusch-WC genau das richtige. Dieses reinigt mit verschiedenen Düsen & Strahlarten schonend aber gründlich, zum Schluss wird alles durch das integrierter Warmluftgebläse wieder getrocknet.
Der Handtuchheizkörper ist mit einem integriertem E-Heizeinsatz ausgestattet, somit wird der Eigenverbrauch der eigenen PV- Anlage optimal verwertet & durch die geschlossene Bauweise kann sich kein Staub mehr zwischen den einzelnen "Rippen" ansammeln.
Die Eiche- Massivholzmöbel bilden zum Schluss einen schönen Kontrast zu den großformatigen dunklen Fliesen.

Vorher / Nachher

Familie J

April 2022

Modernes & helles Elternbad.

Die Wände im Duschbereich & Waschtisch sind mit RESOPAL BOARDS verkleidet,
diese besitzen eine hochwiderstandsfähige HPL-Oberfläche & ermöglichen eine fugenarme Badgestaltung
und erfüllen damit hohe Ansprüche an Optik und Hygiene.

Familie J

April 2022

Modernes Kinderbad mit Bodenebener Duschanlage.

Die Wände im Duschbereich sind mit RESOPAL BOARDS verkleidet,
diese besitzen eine hochwiderstandsfähige HPL-Oberfläche & ermöglichen eine fugenarme Badgestaltung
und erfüllen damit hohe Ansprüche an Optik und Hygiene.

Familie J

April 2022

Modernes Gästebad mit Bodenebener Duschanlage.

Familie H

Juni/ September 2021

von der Gäste-WC-Planung bis zum fertigen Gäste-WC.

 

Vorher / Digitale-Planung / Nachher

Familie H

Juni/ September 2021

von der Badplanung bis zum fertigen Traumbad.



Vorher / Digitale-Badplanung / Nachher